Tag: Comune di Vicenza
Festival Vicenza in Lirica, “L’Opera è Giovane”: ospitalità e borse di...
Il Festival Vicenza in Lirica fin dal suo esordio nel 2013, ha sempre avuto un occhio di riguardo per i giovani artisti promuovendo un sostegno che...
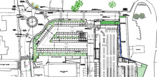
Piano degli Interventi di Vicenza, 30 richieste già presentate potranno essere...
Sono circa 70 le richieste di variante urbanistica presentate dall'adozione del piano degli interventi del 2018 ad oggi. Una trentina di queste, che ricadono...
Rifiuti, a Vicenza sanzionati in tre per conferimento scorretto
Prosegue l'attività di contrasto della polizia locale all'abbandono e al conferimento scorretto dei rifiuti. Nuovi controlli sono stati eseguiti ieri nella zona di viale...
Petizione per transitare su strada privata a Monte Crocetta: non ci...
E’ di pertinenza esclusivamente privata il tratto che collega la strada vicinale di Monte Crocetta con la strada dal Martello e l’amministrazione non può...
Corso San Felice a Vicenza, da lunedì lavori per il nuovo...
Prendono il via lunedì 23 agosto i lavori per la realizzazione della nuova rotatoria in corso Santi Felice e Fortunato.Il cantiere potrà comportare rallentamenti alla circolazione...
Largo Paolo Rossi a Vicenza, via libera dalla Prefettura all’intitolazione
Via libera dalla Prefettura di Vicenza all’intitolazione alla memoria del campione Paolo Rossi dell’area antistante all’accesso principale dello stadio Menti, che prenderà dunque il...
Torna a Vicenza “Be Popular”, Piccolo Festival di Teatro Popolare
Martedì 17 agosto 2021 inizieranno gli spettacoli della quinta edizione del festival di teatro popolare Be Popular, organizzato da Stivalaccio Teatro con l'assessorato alla cultura...
Cimiteri di Vicenza, chiusure per diserbo da lunedì 23 a giovedì...
Da lunedì 23 a giovedì 26 agosto, nei cimiteri di Vicenza Amcps eseguirà un intervento di diserbo chimico per il controllo della vegetazione infestante...
A Ferragosto numerosi turisti nei Musei civici di Vicenza, ass. Simona...
Il gran caldo non ferma i turisti che scelgono i musei di Vicenza per il Ferragosto. Si confermano in aumento, infatti, le presenze di...
Green pass, sindaco Francesco Rucco: nessuna sanzione a Vicenza nel fine...
Green pass, nessuna sanzione in città. E' questo l'esito dei controlli a campione che anche la polizia locale, come le forze dell'ordine, ha effettuato...











































